2014 Ytong Mimari Fikir Yarışması...
Türk Ytong Antalya'ya İkinci...
Ytong Donatılı Duvar Panelleri
Sektöre Değer Katan Bir Eğitim...
YTONG Mimari Fikir Yarışması
Ytong Ulusal Mimari Fikir Yarışması Sonuçlandı
Türk Ytong Sanayi A.Ş. tarafından, 50. kuruluş yılı kutlamaları çerçevesinde düzenlenen "Kültür ve Sosyal Etkinlikler Evi" konulu Ulusal Mimari Fikir yarışmasının ödülleri belirlendi.
Yarışma Sonuçları
Ytong Ulusal Mimari Fikir Yarışması Sonuçlandı
|
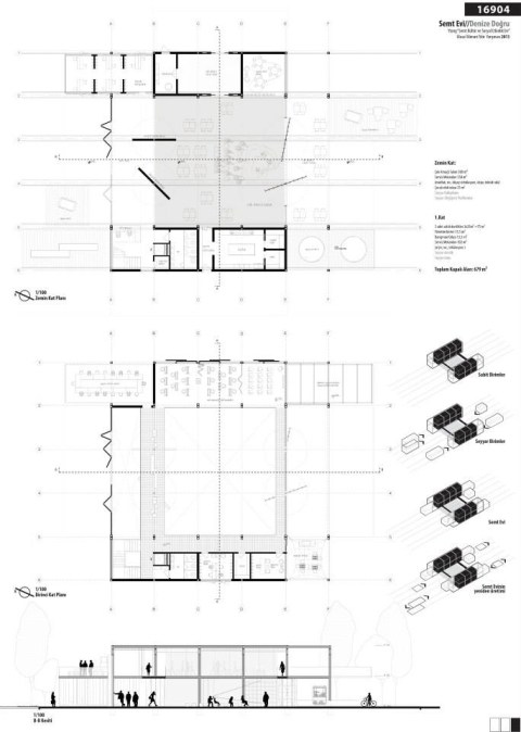
Mansiyon (16904 rumuzlu proje)
|




